30 visitas
Marca: Grupo Arcadia
Origen: Perú
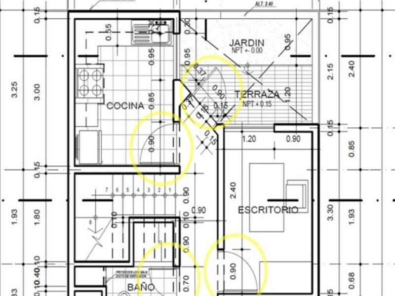
El servicio de ejecución de planos arquitectónicos se encarga de plasmar en detalle las ideas del diseño, creando documentos técnicos precisos para la construcción. Utilizando software especializado y conocimientos técnicos, este servicio traduce conceptos en planos detallados que guían la edificación con claridad y exactitud.