15 visitas
Entregas a: Lima, Perú
Primer y segundo piso existentes
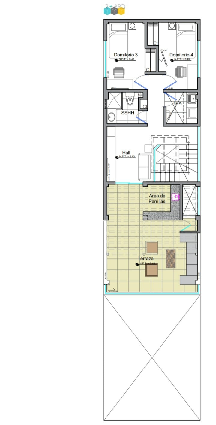
Tercer piso nuestra propuesta
Chiquita pero eficiente
Tu formulario será revisado enseguida.